טוען פרטי נכס...

© 2026 חן ישראלי וברוקרים — כל הזכויות שמורות. אין לעשות שימוש בתמונות ללא אישור בכתב.
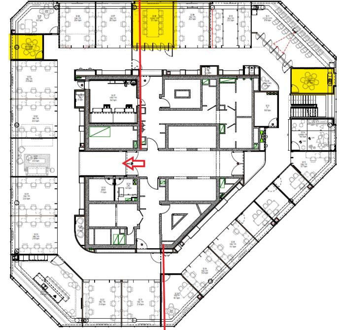
קומת משרדים שלמה להשכרה, קומה גבוהה ומרוהטת בסאבליס מתאימה לחברות סטרטאפ בשלבי צמיחה מתקדמים. מגיעה עם ריהוט מלא Plug & Play. פתרון אידיאלי לחברות הייטק וסטארטאפ המחפשות מעבר מהיר וללא השקעה בשיפוץ. באחד המגדלים המבוקשים ביותר בתל אביב - קרבה מושלמת לרכבת השלום ולתחנת הרכבת הקלה הקו האדום – קרליבך, גישה מיידית לצירי תנועה מרכזיים: מנחם בגין, המסגר ויצחק שדה, ולמתחם הסיטי עם מסעדות, פארק ירוק גדול ועוד.
חלוקת המשרד:
מתאימה לחברות שיושבות בצוותים : הקומה מחולקת לחדרי צוותים של עד כ 6 עובדים בחדר, חדרי מנהלים, חדרי ישיבות, פון בוטים, מטבח גדול.


או השאירו פרטים ונחזור אליכם:

או השאירו פרטים ונחזור אליכם: