טוען פרטי נכס...

© 2026 חן ישראלי וברוקרים — כל הזכויות שמורות. אין לעשות שימוש בתמונות ללא אישור בכתב.
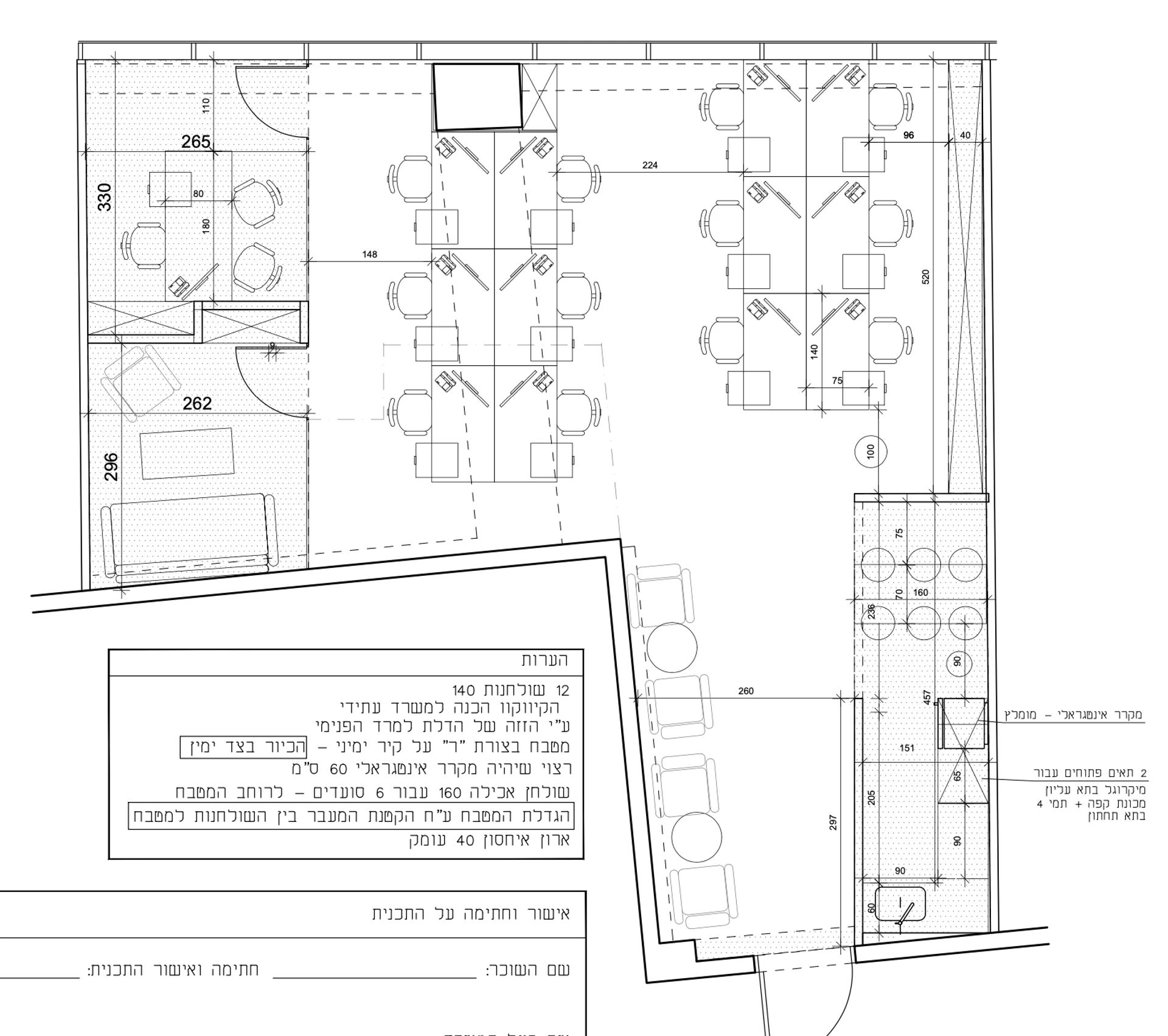
חלל עבודה מודרני ומעוצב במגדל מידטאון (Midtown TLV), המאפשר כניסה מיידית לעבודה בסטנדרט גבוה. בזכות החלוקה החכמה והאופן ספייס, המקום מתאים למגוון רחב של חברות – החל מסטארט-אפים ועד למשרדי אדריכלים, שיווק והשקעות המחפשים סביבה דינמית ונגישות מקסימלית.


מגדל מידטאון | Midtown TLV Tower
משרדים להשכרה במגדל מידטאון תל אביב אם אתם מחפשים משרדים יוקרתיים להשכרה בלב תל אביב, מגדל המשרדים של קומפלקס מידטאון הוא אחת האופציות הבולטות בעיר. ...
לעמוד הבניין המלא
או השאירו פרטים ונחזור אליכם:

או השאירו פרטים ונחזור אליכם: