טוען פרטי נכס...

© 2026 חן ישראלי וברוקרים — כל הזכויות שמורות. אין לעשות שימוש בתמונות ללא אישור בכתב.
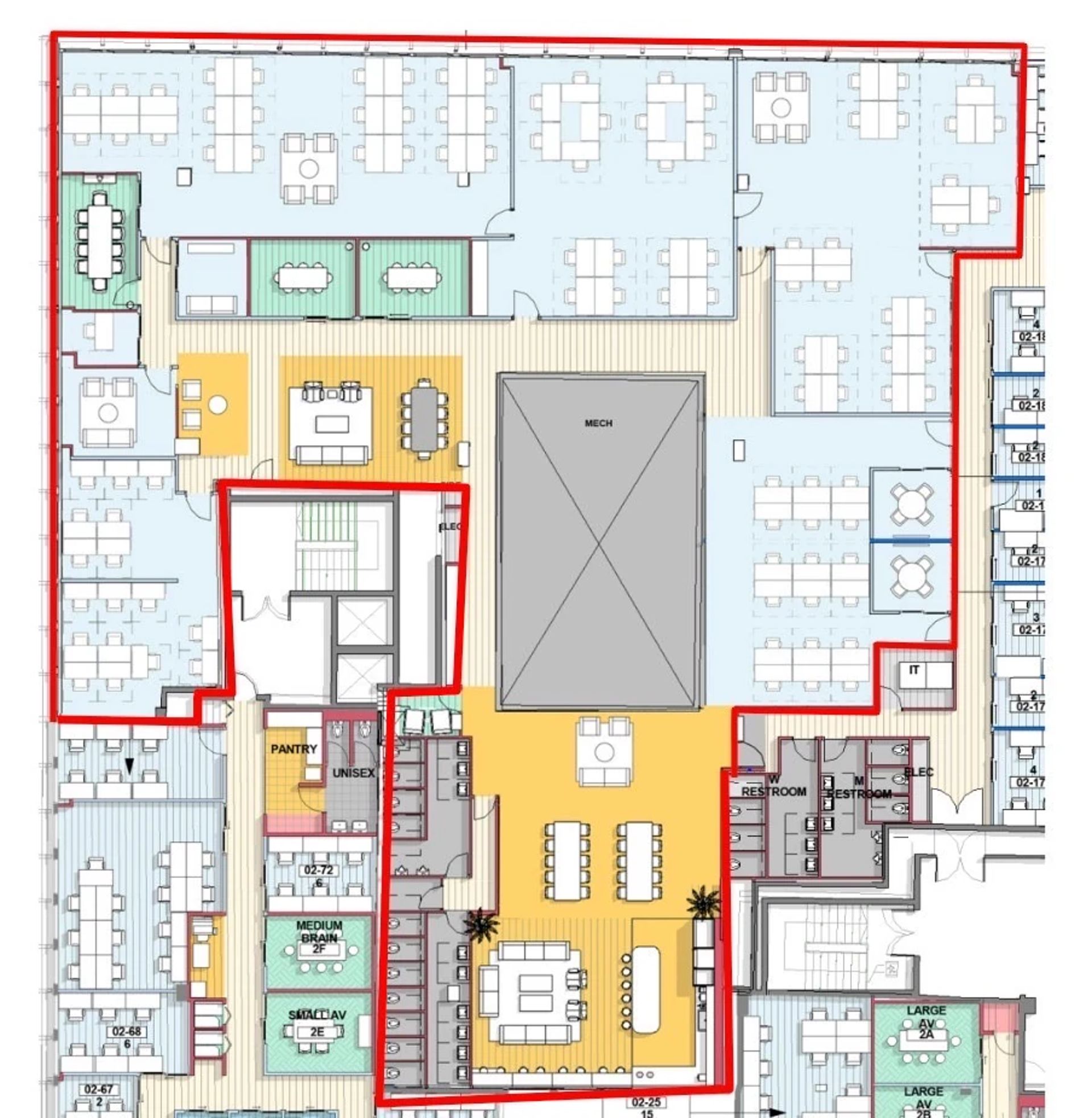
משרדים להשכרה במרכז תל אביב בשטח של 1,415 מ"ר, מרוהטים ומוכנים לכניסה מיידית. הנכס מגיע Plug & Play ריהוט מלא ואבזור מטבח, ומתאים במיוחד לחברות הייטק וסטארטאפים המחפשים סביבת עבודה פונקציונלית בלב העיר.
חלוקת המשרד:
חלל עבודה הכולל אופן ספייס, מגוון משרדים פרטיים, חדרי ישיבות ותאי טלפון, וכן לאונג׳ ומטבח פרטי. המשרד מתאים לכ 110 עובדים. קיימת האפשרות לחלוקה וגמישות בהתאמות בהתאם לצרכי הלקוח.


או השאירו פרטים ונחזור אליכם:

או השאירו פרטים ונחזור אליכם: