טוען פרטי נכס...

© 2026 חן ישראלי וברוקרים — כל הזכויות שמורות. אין לעשות שימוש בתמונות ללא אישור בכתב.
מבנה עצמאי להשכרה בשכונת מונטיפיורי תל אביב, בסמיכות למתחם שרונה ול־תחנת רכבת השלום. אידיאלי לצוותים של 120–140 עובדים, עם אפשרות גדילה עד כ־150.
המבנה מתאים לחברות הייטק ולסטארטאפים בשלבים מתקדמים, המחפשים סביבת עבודה גדולה עם תחושה ביתית, עצמאית ורגועה, כאלטרנטיבה למגדלי משרדים. הנכס מגיע Plug & Play עם ריהוט וציוד מלא, ומאפשר כניסה מהירה.
למבנה גג וחצרות פרטיות, המייצרים חוויית עבודה נעימה, אזורי מפגש ואווירה של בית גם עבור חברות גדולות.
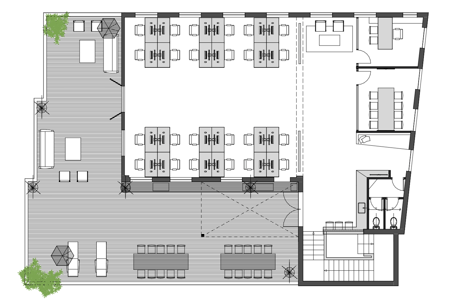
חלוקת המשרד:
מבנה בן 3 קומות עם חלוקה ורסטילית שכוללת אזורי אופן ספייס, חדרי צוותים, חדרי ישיבות וחדרים שקטים. התכנון מתאים לצוותים גדולים ולחברות בצמיחה ומאפשר עבודה נוחה במגוון סגנונות.
יש מטבח מרכזי ומטבח נוסף בקומה העליונה, גג גדול וחצרות פרטיות, כולל חצר עם חיבור לבית קפה הסמוך.




או השאירו פרטים ונחזור אליכם:

או השאירו פרטים ונחזור אליכם: