טוען פרטי נכס...

© 2026 חן ישראלי וברוקרים — כל הזכויות שמורות. אין לעשות שימוש בתמונות ללא אישור בכתב.
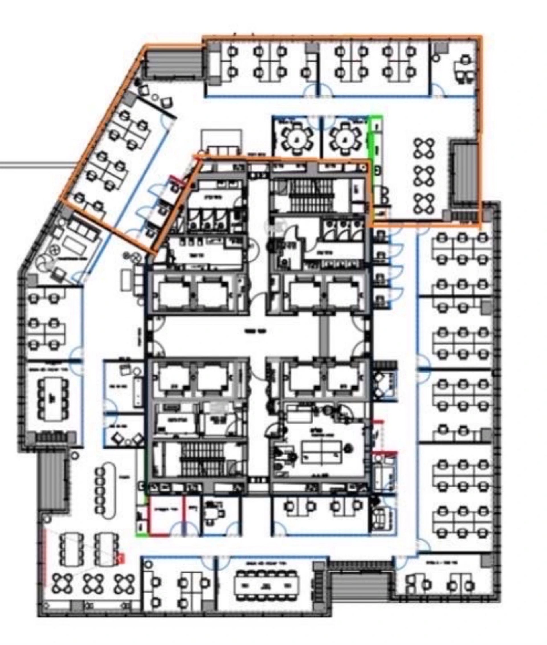
סאבליס פלאג אנד פליי במתחם יצחק שדה בתל אביב, שטח של 362 מ"ר המותאם לחברות הייטק וסטארטאפים. מחיר כולל שכירות, ריהוט מלא, ארנונה ודמי ניהול.
חלוקת המשרד:
המשרדים מחולקים לחדרי צוותים גדולים, חדרי ישיבות, פון בוטים ומטבח מרווח עם אזור All hands.


או השאירו פרטים ונחזור אליכם:

או השאירו פרטים ונחזור אליכם: