טוען פרטי נכס...

© 2026 חן ישראלי וברוקרים — כל הזכויות שמורות. אין לעשות שימוש בתמונות ללא אישור בכתב.
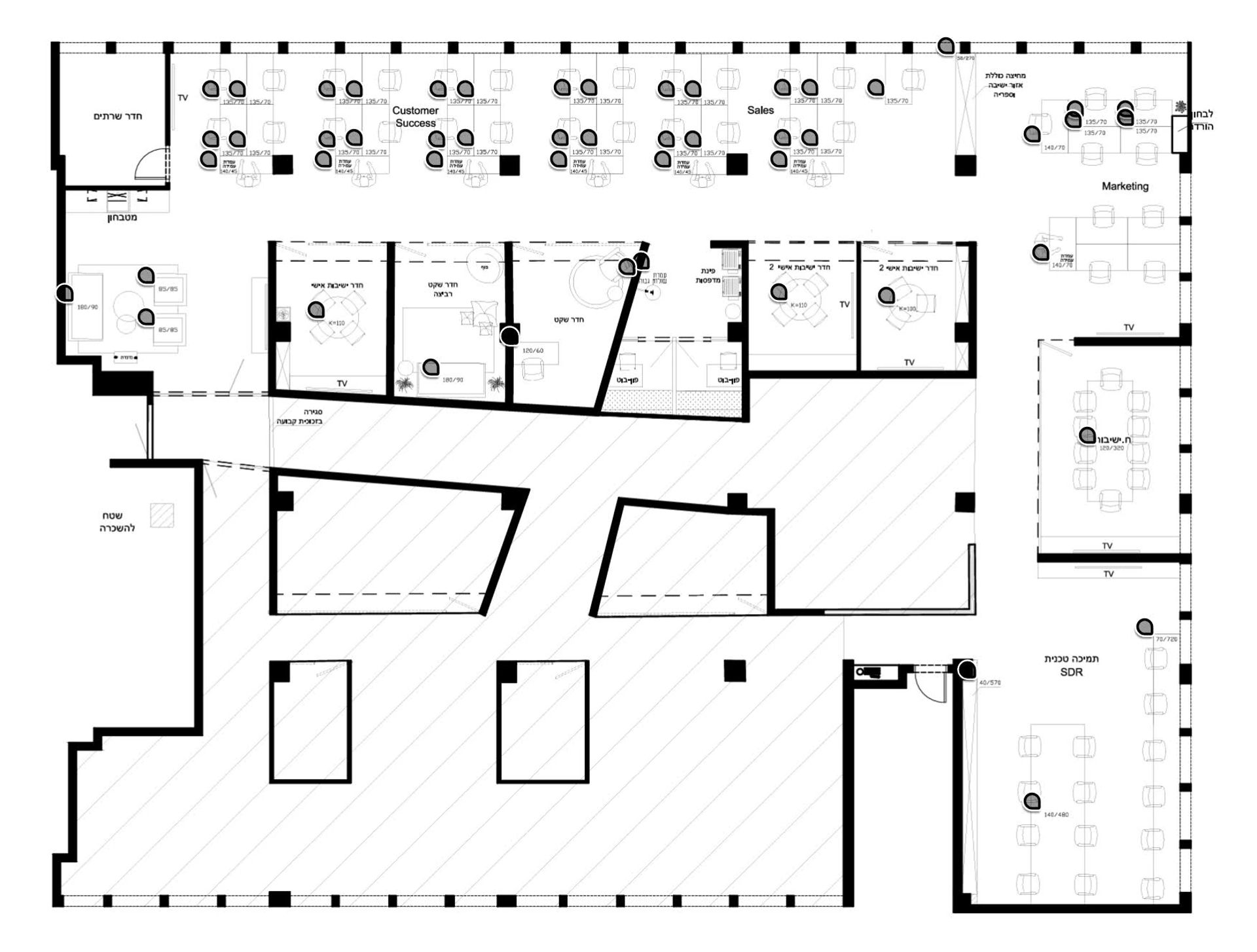
חלל עבודה בשטח של 415 מ"ר מעוצב בסטנדרט גבוה ומותאם לחברות הייטק וסטארט-אפים המחפשים משרד במיקום אסטרטגי.
חלוקת המשרד:
המשרדים מחולקים לאזורי אופן ספייס עם חדרי ישיבות, פון בוטים, וכולל מטבח פתוח עם אזור All Hands רחב ונהנה ממרפסת ענקית שיתופית בבניין המעניקה ערך מוסף לחוויית היום-יום של הצוות.


או השאירו פרטים ונחזור אליכם:

או השאירו פרטים ונחזור אליכם: