טוען פרטי נכס...

© 2026 חן ישראלי וברוקרים — כל הזכויות שמורות. אין לעשות שימוש בתמונות ללא אישור בכתב.
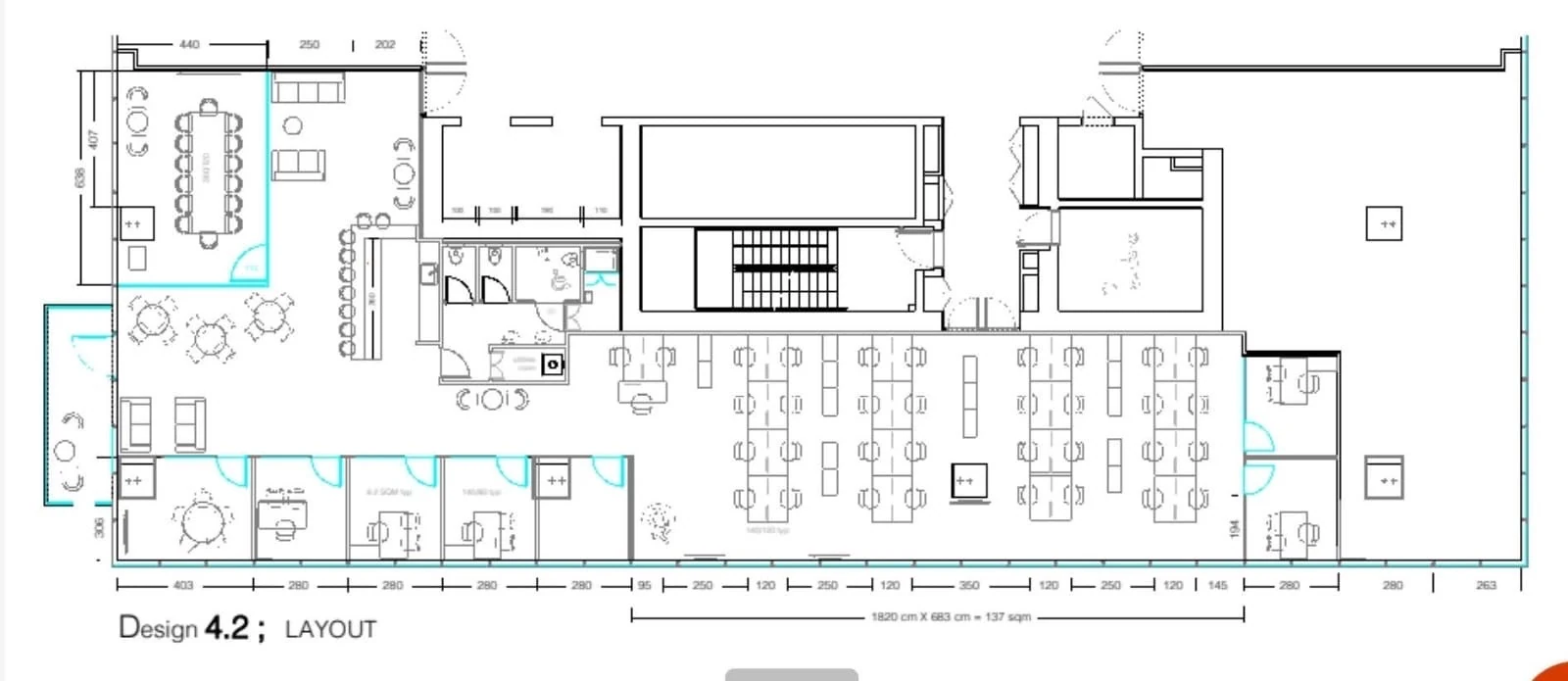
משרד בשטח 497 מ״ר במגדל במתחם שרונה, עם 41 עמדות עבודה. המשרד מתאים לחברות הייטק וסטארט-אפ ומחולק לאופן ספייס גדול, חדרי ישיבות ומנהלים, מטבח קפיטרייה עם אזור All-hands ומרפסת לכיוון הים.


או השאירו פרטים ונחזור אליכם:

או השאירו פרטים ונחזור אליכם: