טוען פרטי נכס...

© 2026 חן ישראלי וברוקרים — כל הזכויות שמורות. אין לעשות שימוש בתמונות ללא אישור בכתב.
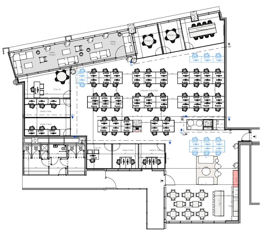
משרד פונקציונלי בסטנדרט גבוה במתחם שרונה, מגיע במצב plug and play מלא הכולל ריהוט ל-56 עמדות עבודה. החלל משלב אופן ספייס רחב, חדרי ישיבות, מטבח פתוח עם אזור all hands ולמרפסת שמש מפנקת. המיקום אסטרטגי במרחק הליכה קצר מרכבת השלום, מתחם שרונה, ומציע נגישות מקסימלית לעובדים.


או השאירו פרטים ונחזור אליכם:

או השאירו פרטים ונחזור אליכם: